Listed by Fontaine Family-The Real Estate Leader (207-784-3800)
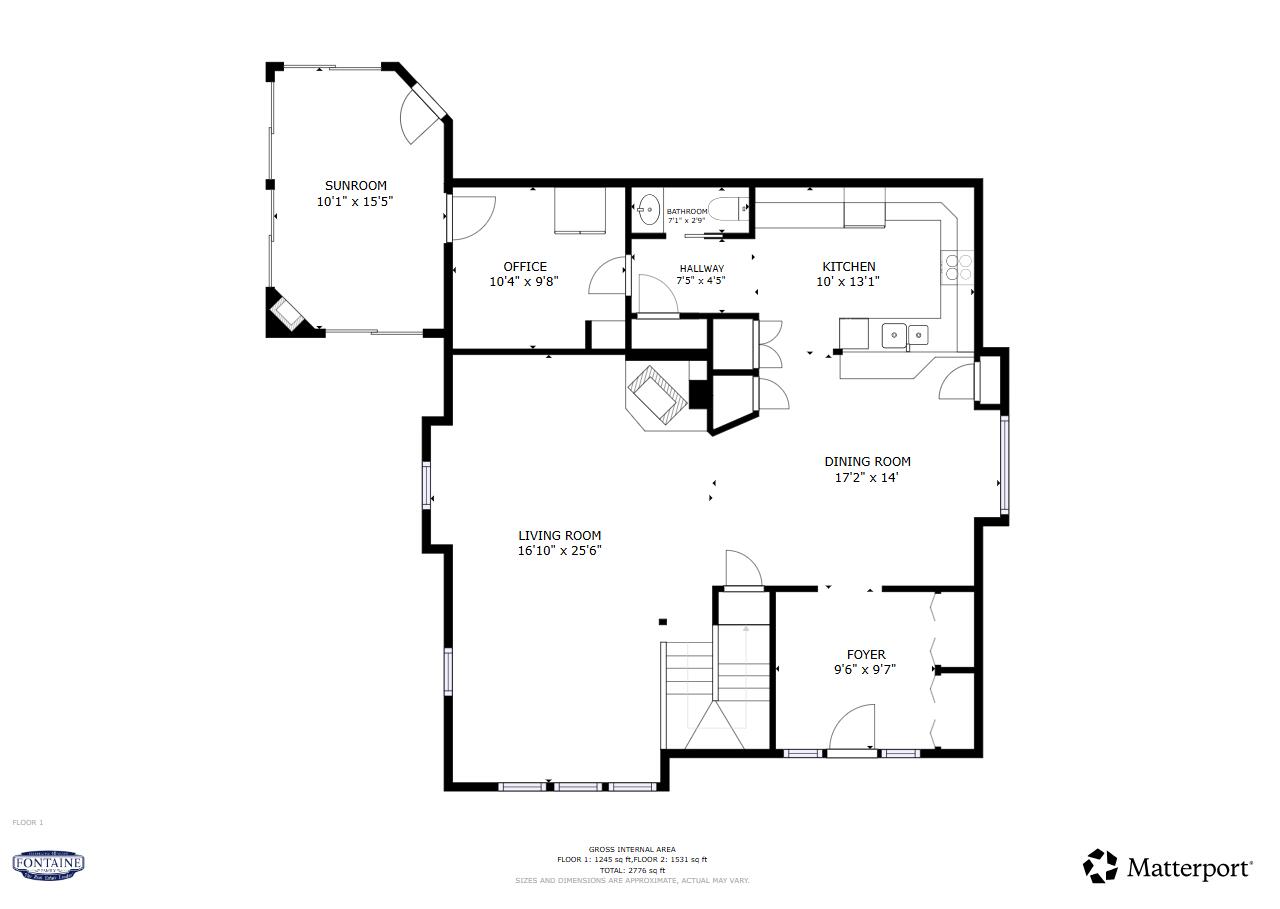
Welcome to 194 Hearthside Road, where lake life and everyday comfort come together in one inviting setting. If you've been searching for a home that offers space to gather, room to unwind, and easy access to the water, this contemporary property on the shores of Sebago Lake delivers. With four bedrooms and two and a half baths, it provides flexibility for a variety of living arrangements. Step inside and you're greeted by soaring cathedral ceilings and a light-filled, open-concept layout that connects the kitchen, dining area, and sunroom--creating an ideal flow for both daily living and entertaining. The sunroom's gas fireplace adds warmth and ambiance, while a whole-house generator offers peace of mind year-round. Outdoors, the experience continues. Relax on the expansive deck surrounded by nature, or stroll to the shared 300 feet of sandy beach frontage. Spend your days boating, fishing, swimming, paddleboarding, or simply enjoying the changing colors of the lake at sunset. A boat mooring is included, with the option to join the waitlist for a second. Conveniently located near local shopping, dining, and St. Joseph's College, this home also places you within approximately 45 minutes of several ski areas--offering four-season recreation at your fingertips. Whether you're seeking a year-round residence or a seasonal retreat, 194 Hearthside Road offers the opportunity to enjoy the very best of Sebago Lake living.

Listing Tools

Property Details of 194 Hearthside Road

Property Details

Interior Features

Utilities and Appliances

Map Location

Listing data is derived in whole or in part from the Maine IDX & is for consumers' personal, non commercial use only. Dimensions are approximate and not guaranteed. All data should be independently verified. ©2026 Maine Real Estate Information System, Inc. All Rights Reserved. equal opportunity housing logo   Privacy Policy

Home With Tom Landry | Benchmark Real Estate participates in ©2026 Maine Listings Internet Data Exchange program, allowing us to display other Maine IDX Participants' listings. This website does not display complete listings. Certain listings of other real estate brokerage firms have been excluded. Mortgage figures are estimates. Check with your bank or proposed mortgage company for actual interest rates. This product uses the FRED® API but is not endorsed or certified by the Federal Reserve Bank of St. Louis.

Hi there! How can we help you?

Contact us using the form below or give us a call.

Send Us A Message:

I agree to receive marketing and customer service calls and text messages from Home With Tom Landry | Benchmark Real Estate. To opt out, you can reply 'stop' at any time or click the unsubscribe link in the emails. Consent is not a condition of purchase. Msg/data rates may apply. Msg frequency varies. Privacy Policy.

Do not fill in this field:

This site is protected by reCAPTCHA and the Google Privacy Policy and Terms of Service apply.

Hi there! How can we help you?

Contact us using the form below or give us a call.

Send Us A Message:

Do not fill in this field:

This site is protected by reCAPTCHA and the Google Privacy Policy and Terms of Service apply.

Hi there! How can we help you?

Contact us using the form below or give us a call.

Send Us A Message:

Do not fill in this field:

This site is protected by reCAPTCHA and the Google Privacy Policy and Terms of Service apply.

Do not fill in this field:

This site is protected by reCAPTCHA and the Google Privacy Policy and Terms of Service apply.

Do not fill in this field:

This site is protected by reCAPTCHA and the Google Privacy Policy and Terms of Service apply.

Do not fill in this field:

This site is protected by reCAPTCHA and the Google Privacy Policy and Terms of Service apply.

$

Do not fill in this field:

This site is protected by reCAPTCHA and the Google Privacy Policy and Terms of Service apply.