Listed by Pouliot Real Estate (207-248-6044)
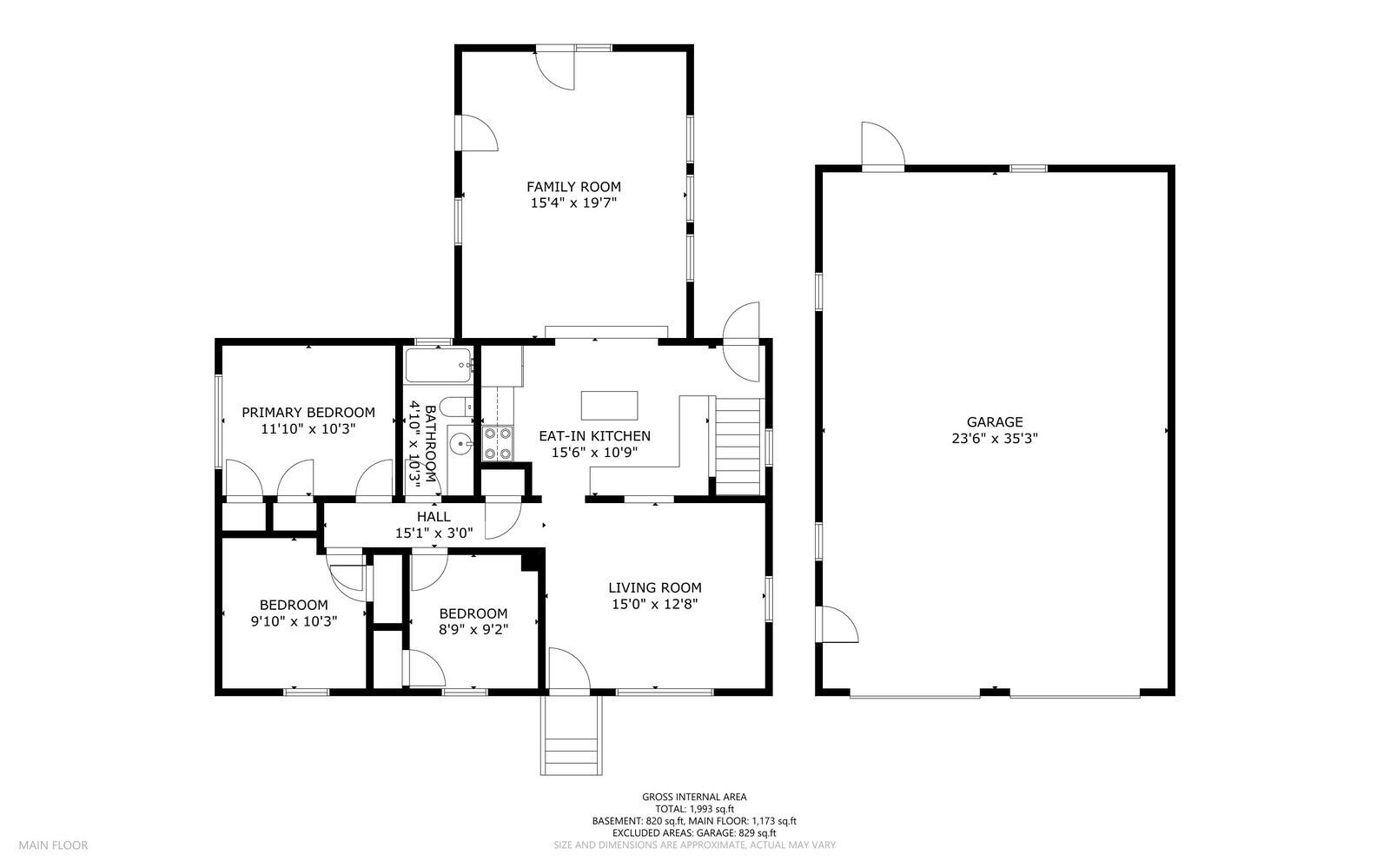
Discover the tremendous value in this solid ranch-style home, nestled on a beautiful lot surrounded by mature trees. Ideal for anyone seeking quiet country living without sacrificing accessibility, this home presents a unique opportunity to build equity and personalize your space. Step inside to find three comfortable bedrooms and one full bathroom, with a sunken living room that offers a great layout and awaits your finishing touch to bring out its full charm. The home offers plenty of room for customization, whether through sweat equity or a purchase-plus-improvements loan that could allow for renovations. A standout feature is the detached 2-car garage, thoughtfully designed with extra depth for workshop or hobby space, perfect for storage or creative projects. Outside, a large deck provides the ideal spot for outdoor gatherings, morning coffee, or evening relaxation. The full basement adds even more flexibility, offering laundry hookups and partially framed space for an optional fourth bedroom or bonus room. Major improvements in recent years on the home include the roof and siding, making exterior maintenance much easier. Don't miss your chance to shape this home into your dream retreat with just a little vision and effort. It's a perfect fit for first-time buyers, DIY enthusiasts, or anyone looking to invest in a home with real upside.

Listing Tools

Property Details of 70 Hussey Hill Road

Property Details

Interior Features

Utilities and Appliances

Map Location

Listing data is derived in whole or in part from the Maine IDX & is for consumers' personal, non commercial use only. Dimensions are approximate and not guaranteed. All data should be independently verified. ©2025 Maine Real Estate Information System, Inc. All Rights Reserved. equal opportunity housing logo   Privacy Policy

Home With Tom Landry | Benchmark Real Estate participates in ©2025 Maine Listings Internet Data Exchange program, allowing us to display other Maine IDX Participants' listings. This website does not display complete listings. Certain listings of other real estate brokerage firms have been excluded. Mortgage figures are estimates. Check with your bank or proposed mortgage company for actual interest rates. This product uses the FRED® API but is not endorsed or certified by the Federal Reserve Bank of St. Louis.

Hi there! How can we help you?

Contact us using the form below or give us a call.

Send Us A Message:

I agree to receive marketing and customer service calls and text messages from Home With Tom Landry | Benchmark Real Estate. To opt out, you can reply 'stop' at any time or click the unsubscribe link in the emails. Consent is not a condition of purchase. Msg/data rates may apply. Msg frequency varies. Privacy Policy.

Do not fill in this field:

This site is protected by reCAPTCHA and the Google Privacy Policy and Terms of Service apply.

Hi there! How can we help you?

Contact us using the form below or give us a call.

Send Us A Message:

Do not fill in this field:

This site is protected by reCAPTCHA and the Google Privacy Policy and Terms of Service apply.

Hi there! How can we help you?

Contact us using the form below or give us a call.

Send Us A Message:

Do not fill in this field:

This site is protected by reCAPTCHA and the Google Privacy Policy and Terms of Service apply.

Do not fill in this field:

This site is protected by reCAPTCHA and the Google Privacy Policy and Terms of Service apply.

Do not fill in this field:

This site is protected by reCAPTCHA and the Google Privacy Policy and Terms of Service apply.

Do not fill in this field:

This site is protected by reCAPTCHA and the Google Privacy Policy and Terms of Service apply.

$

Do not fill in this field:

This site is protected by reCAPTCHA and the Google Privacy Policy and Terms of Service apply.